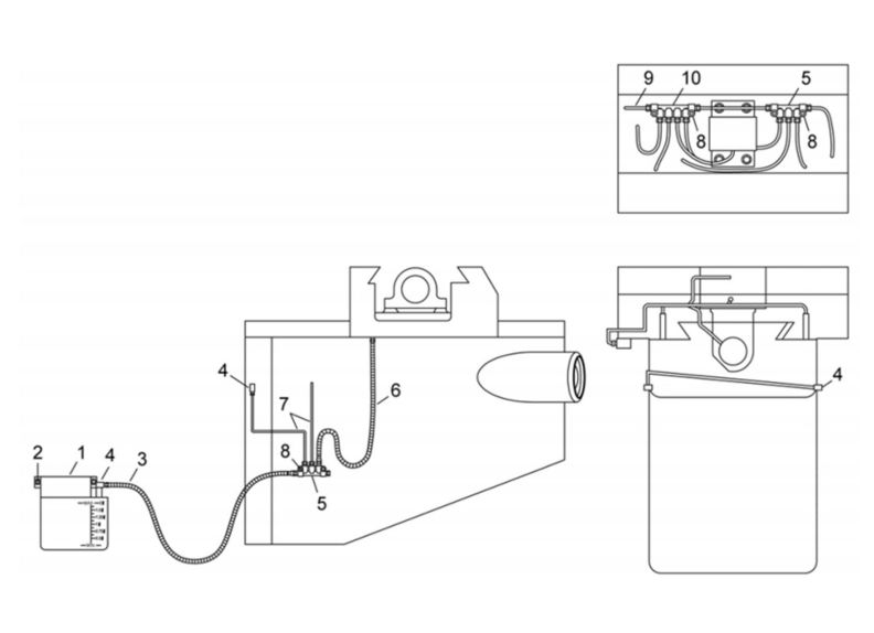
JTM-1050EVS2/230 Lubrication System

Stock Number
691600-10
Grouped product items
Product NamePrice
No options of this product are available.
More Information
Stock Number691600-10
Write Your Own Review
You're reviewing:JTM-1050EVS2/230 Lubrication System
Your Rating
Specifications Print
What's this? Check "Remember Me" to access your shopping cart on this computer even if you are not signed in.